Stanovanje 2S+DB za prodajo, Ražanac, 309 000 €

Stanovanje, 88 m2, Prodaja, Ražanac - Rtina

Stanovanje/apartma v majhni novi stanovanjski stavbi, Rtina, v bližini Ražanca in Zadra.
Nahaja se v stavbi, oddaljeni približno 100 metrov od morja (3. vrsta od morja) in ima lasten bazen ter vsebuje 5 stanovanjskih enot.
Stanovanje ima tudi čudovit razgled na morje in Ljubaški zaliv.
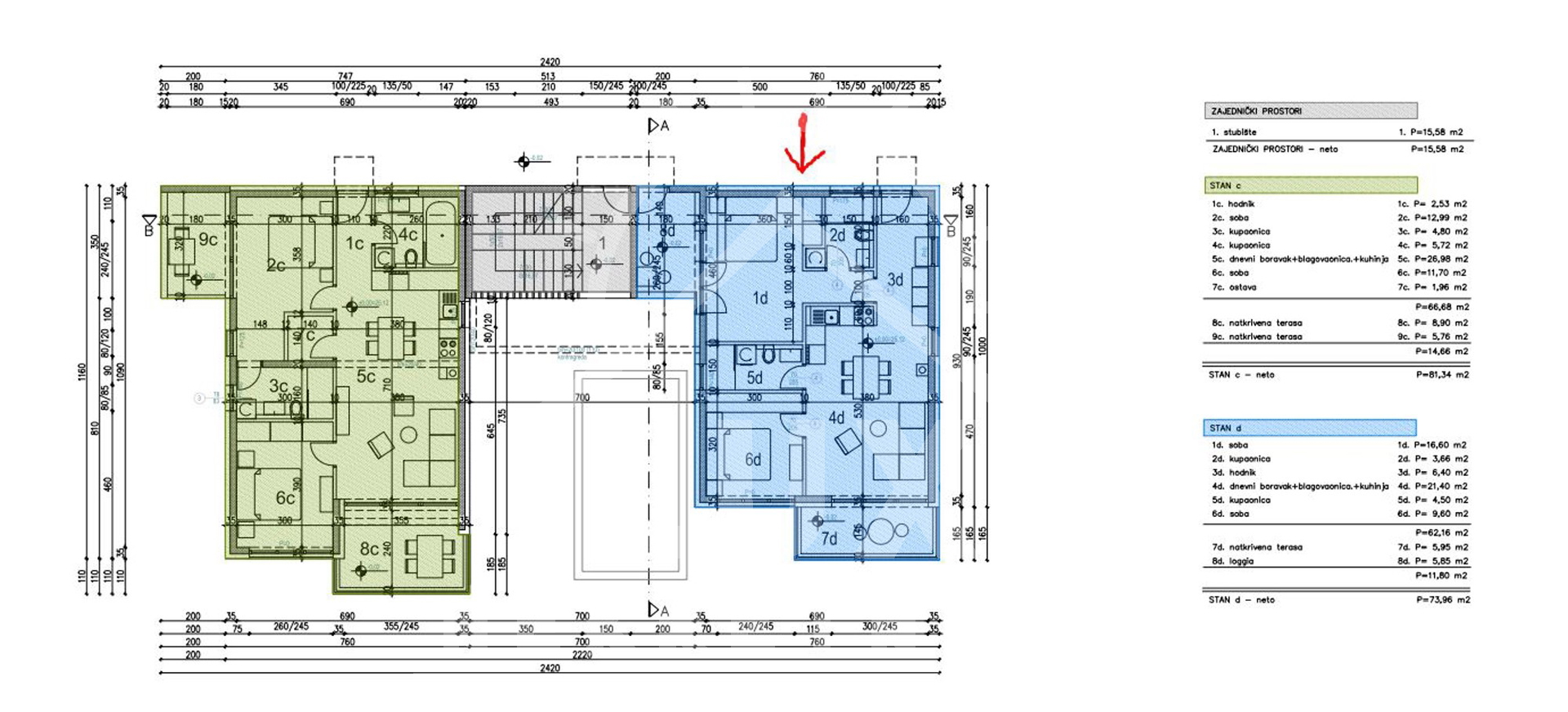
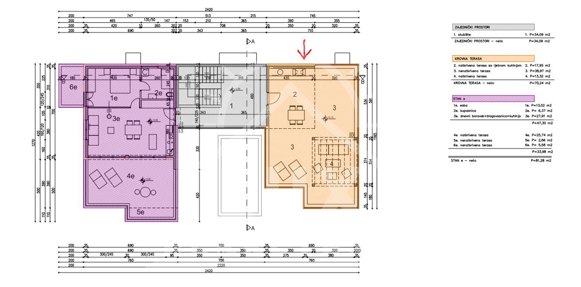
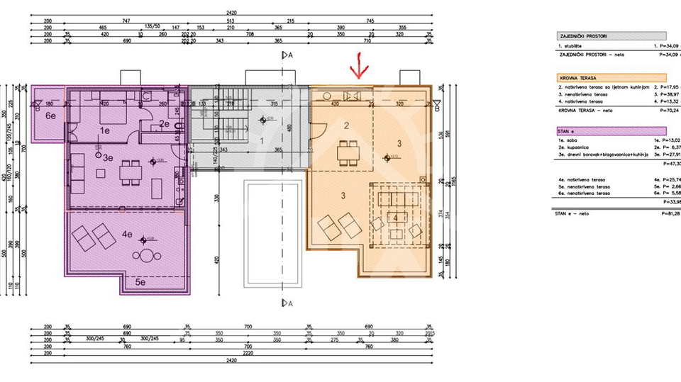
Nahaja se v pritličju/1. nadstropju (zaradi naklona terena), zraven pa je mogoče kupiti tudi strešno teraso (možno jo je kupiti skupaj ali ločeno). Stanovanje ima dva ločena vhoda.
Gre za stanovanje z oznako D, ki vsebuje: hodnik (površina 6,40 m2), prostorno dnevno sobo z jedilnico in kuhinjo OPEN SPACE koncepta (površina 21,40 m2), dve spalnici (površina 16,60 m2 in 9,60 m2), dve kopalnici (površina 4,50 m2 in 3,66 m2), pokrito teraso (površina 5,95 m2) in ložo (površina 5,85 m2). SKUPAJ: 73,96 m2.
Stanovanju pripada tudi eno parkirno mesto z oznako P3 (površina 14,85 m2).
Skupna površina stanovanja z vsemi pripadajočimi dodatki znaša 88,81 m2.
CENA STANOVANJA (brez strešne terase) znaša 309.000,00 evrov.

Stavba je opremljena z vrhunskimi materiali in opremo: klimatske naprave Mitsubishi multi-split (3 enote), talno ogrevanje po celotnem stanovanju (toplotna črpalka), dimnik (možnost vgradnje kamina), zunanje aluminijasto stavbno pohištvo v antracitni barvi, električne žaluzije in komarniki, vrhunska keramika (marmor visoki sijaj), ogrevanje vode s toplotno črpalko in solarni sistem.

STREŠNA TERASA: ločen vhod, uporabna površina 70,24 m2, delno pokrita in delno nepokrita, priključki za vodo, elektriko, odtok vode in dimnik, odprt pogled na morje, steklena ograja. Ponuja ogromen potencial, saj se lahko uporabi za gradnjo stanovanja.
CENA STREŠNE TERASE (ločeno) znaša 129.000,00 evrov.

Stavba ima skupne prostore, ki jih uporabljajo vsi najemniki, to so BAZEN, prostor za sončenje in urejen vrt.

K stanovanju je mogoče kupiti tudi parkirna mesta:
P1 površina 10,25 m2 – CENA: 8.100,00 evrov.
P2 površina 12,30 m2 – CENA: 9.500,00 evrov.
P6 površina 13,50 m2 – CENA: 10.500,00 evrov.
P8 površina 14,38 m2 – CENA: 11.300,00 evrov.
Ta nepremičnina ponuja več možnosti, oddih na izjemno mirni lokaciji v bližini morja in čudovitega razgleda, bližino avtoceste, bližino kakovostnih vsebin, kot so narodni in naravni parki, otok Pag in mesto Zadar, pa tudi turistični najem (nepremičnina se lahko uporabi za pridobitev dveh stanovanjskih enot in strešne terase).

Stanovanje/stanovanje je registrirano na DRUŽBO, zato kupec NE PLAČA DAVKA NA NEPREMIČNINO!

Osnovni podatki

  • Šifra stavbeiro-419
  • Prodajna cena309 000 €
  • LokacijaRažanac, Rtina (23248)
  • Kvadratura88,81 m2
  • Tip stanovanja2S+DB
  • Energetski razredA+
  • Število prodaje3
  • Število spalnic2
  • Število kopalnic2
  • Nadstropje opisnoPritličje
  • Število etažEnoetažni
  • Nadstropij v stavbi1
  • Vrsta stavbeStanovanjski
  • Leto izdelave2025
  • Število parkirnih mest1

Različne lastnosti

  • Balkon
  • Loggia
  • Bazen
  • Alu
  • Pogled na morje

Ogrevanje

  • Klima
  • Talno gretje

Inštalacije

  • Elektrika
  • Voda
  • Greznica

Stanje stavbe

  • Novogradnja

Orijentacija v stavbi

  • Jug

Možnost najema

  • Klimatizirano

V bližini

  • Trgovina
  • Javni prevoz
  • Restavracija
  • Park
  • Šola

Dovoljenja

  • Gradbena dovoljenja
  • Uporabno dovoljenje

Nepremičnina na zemljevidu

Kontakt zastopnika

Suzana Jakovac
Ta spletna stran zapusti "piškotke" v računalniku za namene navigacije vsebine in anonimne zbirke statističnih podatkov o uporabi. Z uporabo te spletne strani potrjujete, da se strinjate s tem.