Stanovanje 3S+DB za prodajo, Zadar, 279 000 €

Stanovanje, 67 m2, Prodaja, Zadar - Plovanija

Stanovanjska stavba z 8 stanovanjskimi enotami, Zadar (Plovanija) NOVOGRADNJA.
Sestavljena je iz pritličja in dveh nadstropij. V pritličju sta dve stanovanjski enoti, v 1. in 2. nadstropju pa tri.
OPREMA STAVBE: varnostna in protipožarna vrata v stanovanja, zunanje PVC stavbno pohištvo z mrežami proti komarjem, 10 cm debela fasada (načrtovani energetski razred A+), klimatske naprave v vseh prostorih, talno ogrevanje v kopalnicah, talne obloge - keramika in hrastov parket.
Lokacija je izjemno mirna, blizu narave in obdana z novejšimi stavbami, ki ustvarjajo manjše urbano naselje novejšega datuma. Pred stavbo je predvidena izgradnja velikega zelenega parka na površini 5000 m2 (v oglasu je več fotografij istega parka).
Stavba bo priključena na mestni vodovod in kanalizacijo.

Stanovanja bodo registrirana na podjetje, tako da kupec NE PLAČA DAVKA NA PROMET NEPREMIČNIN!

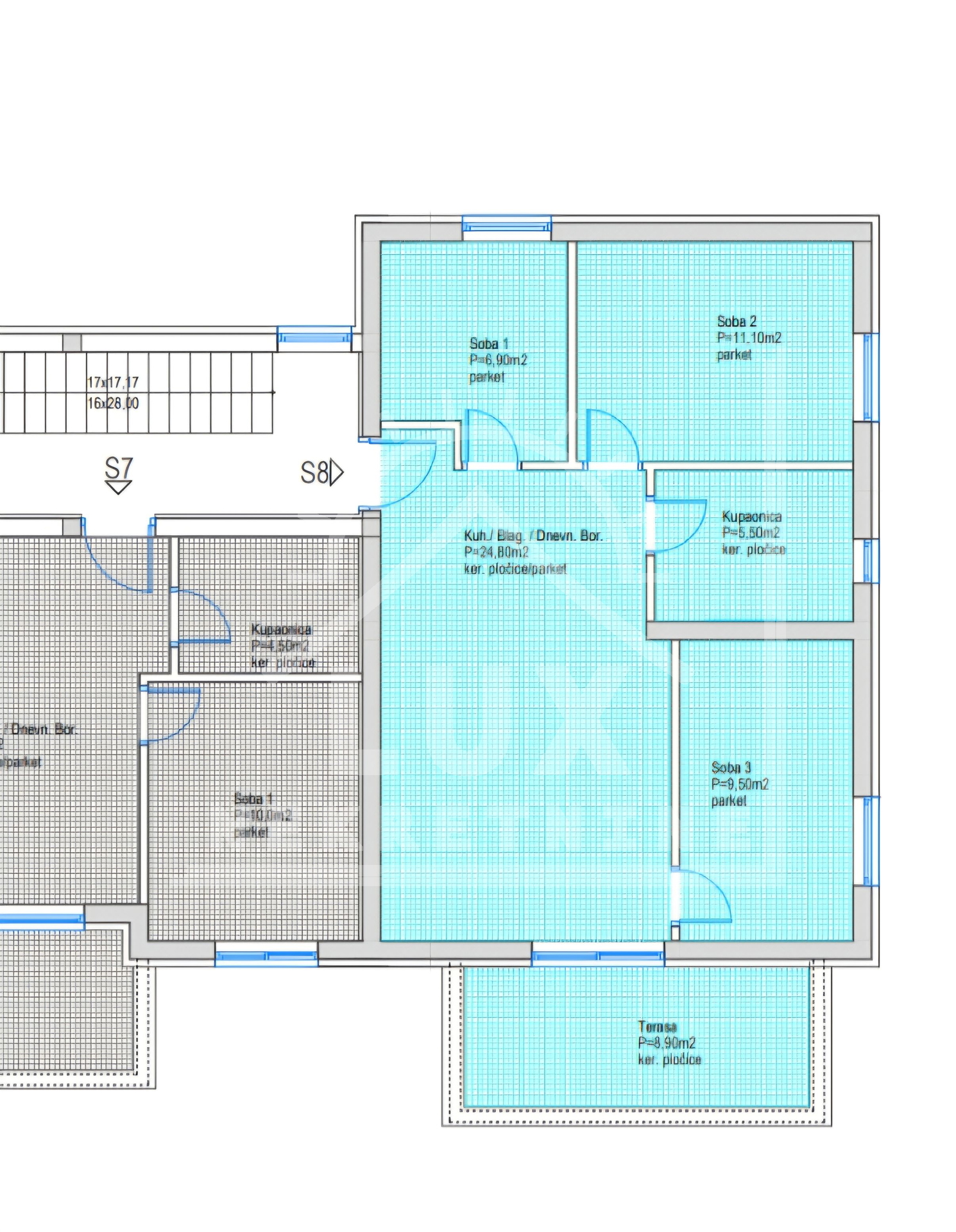
STANOVANJE S8 v 2. nadstropju, trisobno, vsebuje: dnevno sobo z jedilnico in kuhinjo (površina 24,80 m2), tri spalnice (površina 11,10 m2, 9,50 m2 in 6,90 m2), kopalnico (površina 5,50 m2) in teraso (površina 8,90 m2).
Orientacija stanovanja je JUG - SEVER.
Stanovanju pripadata tudi dve parkirni mesti PM19 in PM20 na dvorišču stavbe (površina 13,75 m2 in 13,75 m2).
Skupna uporabna površina stanovanja z vsemi dodatki je 67,75 m2.

Osnovni podatki

  • Šifra stavbeiro-412
  • Prodajna cena279 000 €
  • LokacijaZadar, Plovanija (23000)
  • Kvadratura67,75 m2
  • Tip stanovanja3S+DB
  • Energetski razredA+
  • Število prodaje4
  • Število spalnic3
  • Število kopalnic1
  • Nadstropje2
  • Število etažEnoetažni
  • Nadstropij v stavbi2
  • Vrsta stavbeStanovanjski
  • Leto izdelave2026
  • Število parkirnih mest2

Različne lastnosti

  • Balkon
  • PVC
  • Pogled na morje

Ogrevanje

  • Talno gretje
  • Klima

Inštalacije

  • Elektrika
  • Voda
  • Kanalizacija

Stanje stavbe

  • Novogradnja

Orijentacija v stavbi

  • Jug
  • Sever

V bližini

  • Javni prevoz
  • Trgovina
  • Frizerski salon
  • Veterinar
  • Bolnica
  • Šola
  • Zobna ambulanta
  • Bazen

Dovoljenja

  • Gradbena dovoljenja

Nepremičnina na zemljevidu

Kontakt zastopnika

Suzana Jakovac
Ta spletna stran zapusti "piškotke" v računalniku za namene navigacije vsebine in anonimne zbirke statističnih podatkov o uporabi. Z uporabo te spletne strani potrjujete, da se strinjate s tem.