Stanovanje 2S+DB za prodajo, Zadar, 275 000 €

Stanovanje, 71 m2, Prodaja, Zadar - Skroče

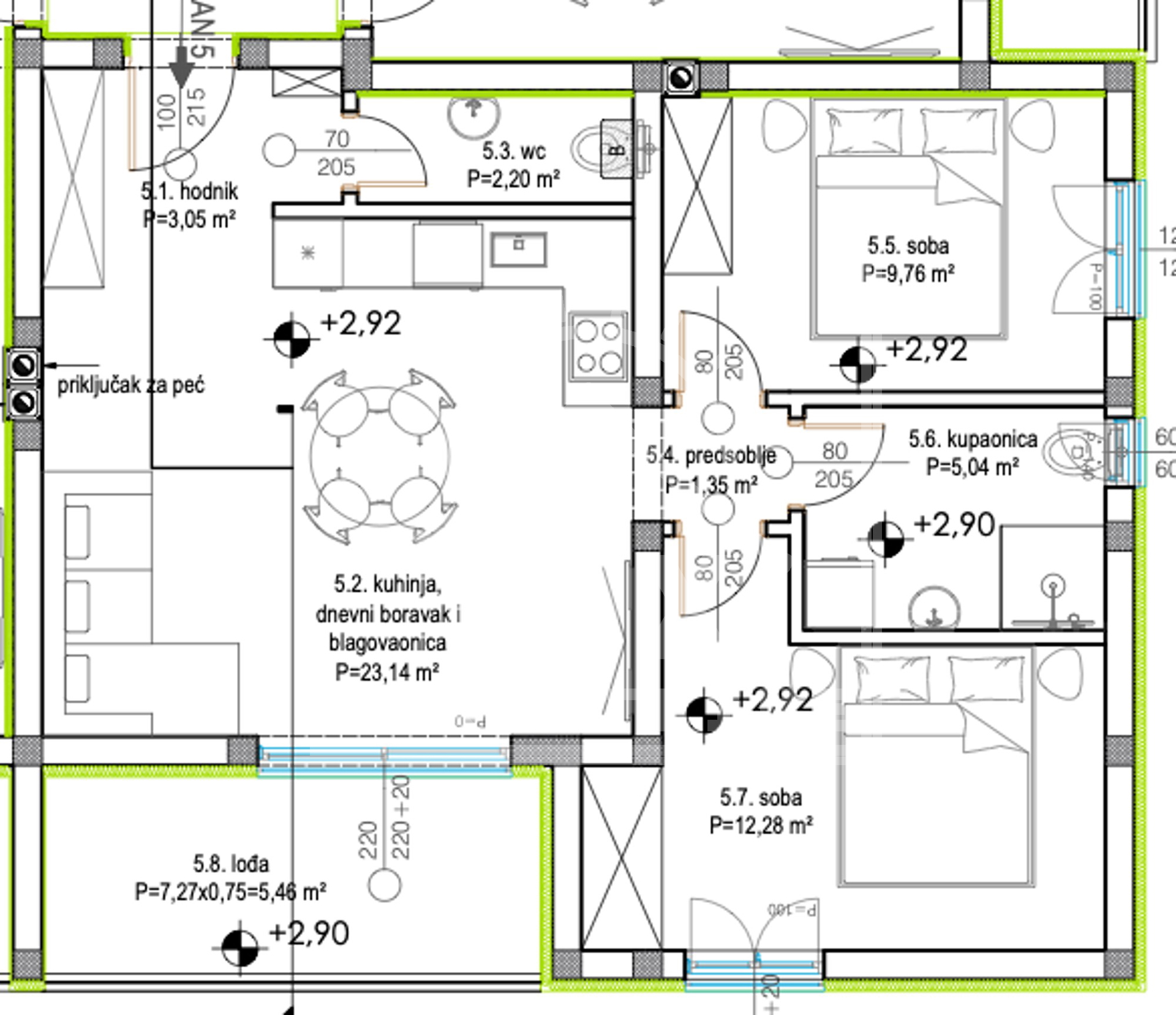
NOVOZGRAJENO stanovanje, površina 71,63 m2, dve spalnici, Zadar (Skročini).
Nahaja se v manjši stanovanjski stavbi z 9 stanovanjskimi enotami, v 1. nadstropju in vsebuje: hodnik, kuhinjo z jedilnico in dnevno sobo, dve spalnici, hodnik, kopalnico in stranišče. Skupna površina notranjega prostora stanovanja je 56,82 m2.
Stanovanju pripada tudi loža (površina 7,27 m2), shramba v kleti stavbe (površina 7,71 m2) in dve zunanji parkirni mesti (površina 13,75 m2 in 13,75 m2).
Skupna uporabna površina stanovanja je 99,30 m2 (skupna uporabna površina je 71,63 m2).
Stanovanje ima talno ogrevanje v kuhinji z jedilnico in dnevno sobo ter v kopalnici. Ima tudi klimatsko napravo.
Ni opremljeno.
Nahaja se na izjemno mirni lokaciji. Ima čudovit razgled na mesto in morje.

Osnovni podatki

  • Šifra stavbeiro-381
  • Prodajna cena275 000 €
  • LokacijaZadar, Skroče (23000)
  • Kvadratura71,63 m2
  • Tip stanovanja2S+DB
  • Energetski razredA+
  • Število prodaje3
  • Število spalnic2
  • Število kopalnic1
  • Nadstropje1
  • Število etažEnoetažni
  • Nadstropij v stavbi2
  • Vrsta stavbeStanovanjski
  • Leto izdelave2025
  • Število parkirnih mest2

Različne lastnosti

  • Loggia
  • Shramba
  • Video nadzor
  • PVC
  • Pogled na morje

Ogrevanje

  • Klima
  • Talno gretje

Inštalacije

  • Elektrika
  • Voda
  • Kanalizacija

Stanje stavbe

  • Novogradnja

Orijentacija v stavbi

  • Jug

V bližini

  • Javni prevoz
  • Trgovina
  • Restavracija
  • Bencinska postaja
  • Veterinar
  • Lekarna
  • Park
  • Fitness
  • Zobna ambulanta

Dovoljenja

  • Gradbena dovoljenja
  • Uporabno dovoljenje

Nepremičnina na zemljevidu

Kontakt zastopnika

Suzana Jakovac
Ta spletna stran zapusti "piškotke" v računalniku za namene navigacije vsebine in anonimne zbirke statističnih podatkov o uporabi. Z uporabo te spletne strani potrjujete, da se strinjate s tem.