Stan 3S+DB za prodaju, Zadar, 386 250 €

Trosoban stan na 1. katu u NOVOGRADNJI, Zadar (Bulevar)

Stambena zgrada u NOVOGRADNJI sa samo 5 stambenih jedinica (prizemlje i dva kata), Zadar (Bulevar).
U prizemlju zgrade nalazi se jedna stambena jedinica koja ima svoj vrt, a na katovima po dvije. Volumen katova služi i kao nadstrešnica ulaza u zgradu i kao dio parkirališnog prostora zgrade (postoje 5 natkrivenih i 5 nenatkrivenih parkirnih mjesta). Krov zgrade je ravan, neprohodan. Zgrada se gradi armirano-betonskom konstrukcijom, a unutrašnji pregradni zidovi će biti gips-kartonski deb. 10-12.5 cm. Vanjska stolarija će biti PVC, s troslojnim staklima i električnim podizačima roleta. Ulazna vrata u stanove su protuprovalna i protupožarna. Na ulazu u zgradu nalazit će se videoportafon. Svaka soba će imati klima uređaj (multi-split), a kupaonice će imati podno grijanje. Fasada će biti deb. 10 cm (očekivali energetski razred +A). Na podovima će se nalaziti visokokvalitetna keramika (kuhinja i sanitarni čvor) i parket (preostale prostorije). U kupaonicama će biti postavljene walk in tuš kabine.
Radovi na izgradnji su započeti u proljeće 2026. god., a završetak je planiran u mjesecu siječnju 2027. god. (najkasnije do proljeća 2027. god.).
Stanovi će glasiti na firmu što znači da KUPAC NE PLAĆA POREZ NA PROMET NEKRETNINA!

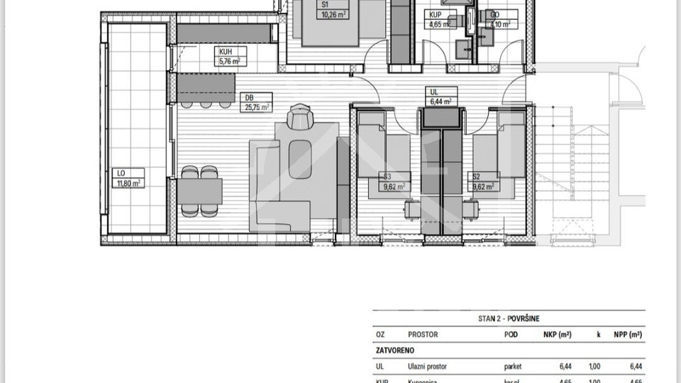
Stan oznake S2, trosoban, nalazi se na 1. katu i sadrži ulazni prostor (pov. 6.44 m2), dnevni boravak s blagovaonicom i kuhinjom (pov. 25.75 m2 + 5.76 m2), tri spavaće sobe (pov. 10.26 m2, 9.62 m2 i 9.62 m2), kupaonicu (pov. 4.65 m2), WC s praonicom (pov. 4.10 m2) i loggia-u (pov. 11.80 m2).
Ukupna pov. stana iznosi 85.05 m2.
Stan će imati podnog grijanja (dizalice topline) u čitavom stanu.
Pripadaju mu jedno natkriveno i jedno nenatkriveno parkirno mjesto na okućnici zgrade.
Orijentacija stana je ZAPAD.






novogradnja, tri spavaće sobe, blizina mora, 1. kat

Osnovne informacije

  • Šifra objektairo-421
  • Prodajna cijena386 250 €
  • LokacijaZadar, Bulevar (23000)
  • Kvadratura85,05 m2
  • Tip stana3S+DB
  • Energetski razredA+
  • Broj soba4
  • Broj spavaćih soba3
  • Broj kupaonica1
  • Kat1
  • Broj etažaJednoetažni
  • Ukupno katova2
  • Vrsta zgradeStambena
  • Godina izgradnje2026
  • Br. parkirnih mjesta2

Razna svojstva

  • Lođa
  • Video nadzor
  • PVC stolarija
  • Alu stolarija

Grijanje

  • Podno grijanje
  • Klima

Instalacije

  • Struja
  • Voda
  • Kanalizacija

Stanje zgrade

  • Novogradnja

Orijentacija

  • Zapad

U blizini

  • Trgovina
  • Restoran
  • Javni prijevoz
  • Frizerski salon
  • Benzinska postaja
  • Ljekarna
  • Veterinar

Dokumentacija

  • Građevinska dozvola

Prikaz nekretnine na karti

Kontaktiraj agenta

Suzana Jakovac
Ova stranica ostavlja "kolačiće" na Vašem kompjutoru za potrebe navigacije i anonimizirane statistike pristupa. Korištenjem ove stranice prihvaćate i potvrđujete ove "kolačiće".