Wohnung 2-Z+WZ zu verkaufen, Zadar, 440 000 €

Wohnung, 84 m2, Verkauf, Zadar - Melada

Wohnung in einem Wohngebäude mit Aufzug, 84 m2 (83,24 m2), komfortable Zweizimmerwohnung in Zadar (Melada).

Die Wohnung wurde kürzlich komplett renoviert und ist mit hochwertigen Materialien ausgestattet.

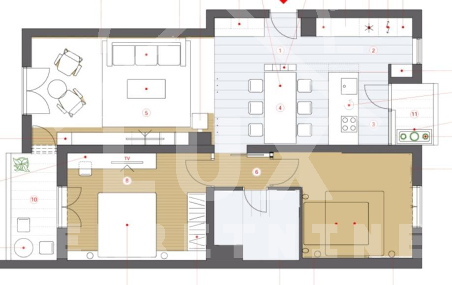
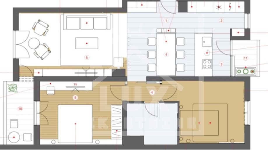
Sie umfasst: Eingangsbereich, großzügiges Wohnzimmer mit Essbereich und Küche (offener Wohnbereich), kleinen Flur, zwei geräumige Schlafzimmer, Badezimmer und zwei Loggien (eine kleinere und eine große).

Die Wohnung ist exquisit ausgestattet (Kommerling-Einbaufenster mit Dreifachverglasung, 4 Mitsubishi-Klimaanlagen, erstklassiges Parkett und Fliesen aus Italien, Sicherheitseingangstür, maßgefertigte Möbel, DanKuchen-Küche etc.).

Die Wohnung bietet einen wunderschönen Blick auf die Stadt und das Meer und befindet sich im 5. Stock (vorletzte Etage).

Die Ausrichtung ist Süd-Südwest.

Zur Wohnung gehört außerdem ein Holzschuppen im Keller des Gebäudes sowie eine eigene Garage mit einem zusätzlichen Stellplatz direkt daneben. Die Garage ist komplett ausgestattet (kühlendes Dach, Fassade und Innenausstattung) und bietet Platz für einen großen SUV und drei Fahrräder. Sie verfügt über ein automatisches Tor und eine zusätzliche Seitentür sowie Stromanschluss, eine Ladestation für Elektrofahrzeuge, Internet und eine Alarmanlage.

Das Gebäude, in dem sich die Wohnung befindet, wurde vor einigen Jahren energieeffizient saniert (10 cm dicke Fassade, Dach, Außenschreinerei).

Die Wohnung liegt in exzellenter Stadtlage in der Nähe aller Annehmlichkeiten für ein komfortables Leben und nur 15 Gehminuten von der Altstadt (Poluotok) entfernt.

Grundlegende Informationen

  • Objekt-Kennnummeriro-407
  • Verkaufspreis440 000 €
  • Standort Zadar, Melada (23000)
  • Fläche84,00 m2
  • Wohnungstyp2-Z+WZ
  • Anzahl der Zimmer3
  • Anzahl der Schlafzimmer2
  • Anzahl der Badezimmer1
  • Geschoss5
  • Anzahl der StockwerkeEinstöckig
  • Geschosse insgesamt6
  • GebäudeartWohngebäude
  • Baujahr1980
  • Anzahl der Parkplätze2

Sonstige Eigenschaften

  • Loggia
  • Balkon
  • Speisekammer (Abstellraum)
  • Aufzug
  • Meerblick

Heizung

  • Klimaanlage
  • Gas

Installationen

  • Strom
  • Wasser
  • Kanalisation

Zustand des Gebäudes

  • Renoviert

Ausrichtung

  • Süden
  • Süden
  • Westen

Parkplatz

  • Garage

In der Nähe

  • Supermarkt
  • Öffentliche Verkehrsmittel
  • Park
  • Friseursalon
  • Apotheke
  • Schule
  • E-Auto-Ladestation

Dokumentation

  • Baugenehmigung
  • Nutzungsgenehmigung

Standort der Immobilie

Kontaktieren Sie diesen Agenten

Suzana Jakovac
Diese Website hinterlässt "Cookies" auf Ihrem Computer zum Zweck der Inhaltsnavigation und anonymisierten Nutzungsstatistiken. Durch die Nutzung dieser Website bestätigen Sie, dass Sie dem zustimmen.