Stan 1S+DB za prodaju, Zadar, 185 000 €

Jednosoban stan na 2. katu, Zadar (Plovanija) NOVOGRADNJA

Stambena zgrada sa 8 stambenih jedinica, Zadar (Plovanija) NOVOGRADNJA.
Sastoji se od prizemlja i dva kata. U prizemlju se nalaze dvije stambene jedinice, a na 1. i 2. katu po tri.
OPREMA ZGRADE: ulazna protuprovalna i protupožarna vrata u stanove, vanjska PVC stolarija s komarnicima, fasada debljine 10 cm (predviđeni energetski razred A+), klima uređaji u svim sobama, podno grijanje u kupaonicama, podloge na podovima – keramika i hrastov parket.
Lokacija je iznimno mirna, u blizini prirode i u okruženju novijih zgrada koje kreiraju manje urbano naselje novijeg datuma. Ispred zgrade planirana je izgradnja velikog zelenog parka na površini od 5000 m2 (u oglasu se nalazi i više fotografija istog).
Zgrada će biti spojena na gradski vodovod i kanalizaciju.

Završetak gradnje planiran je za kraj ljeta 2026. god, a dokumentacija zgrade i stanova do kraja 2026. god.

Stanovi će glasiti na firmu tako da kupac NE PLAĆA POREZ NA PROMET NEKRETNINA!

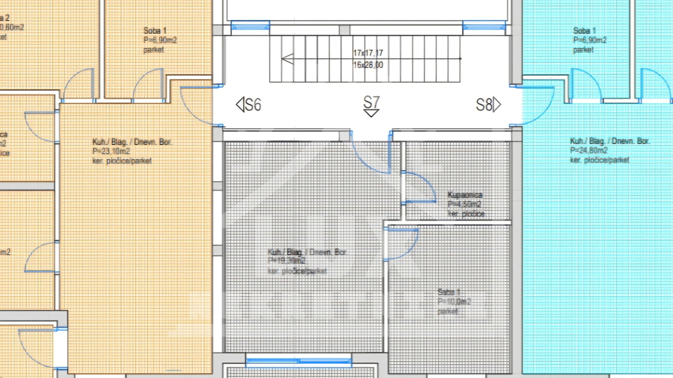
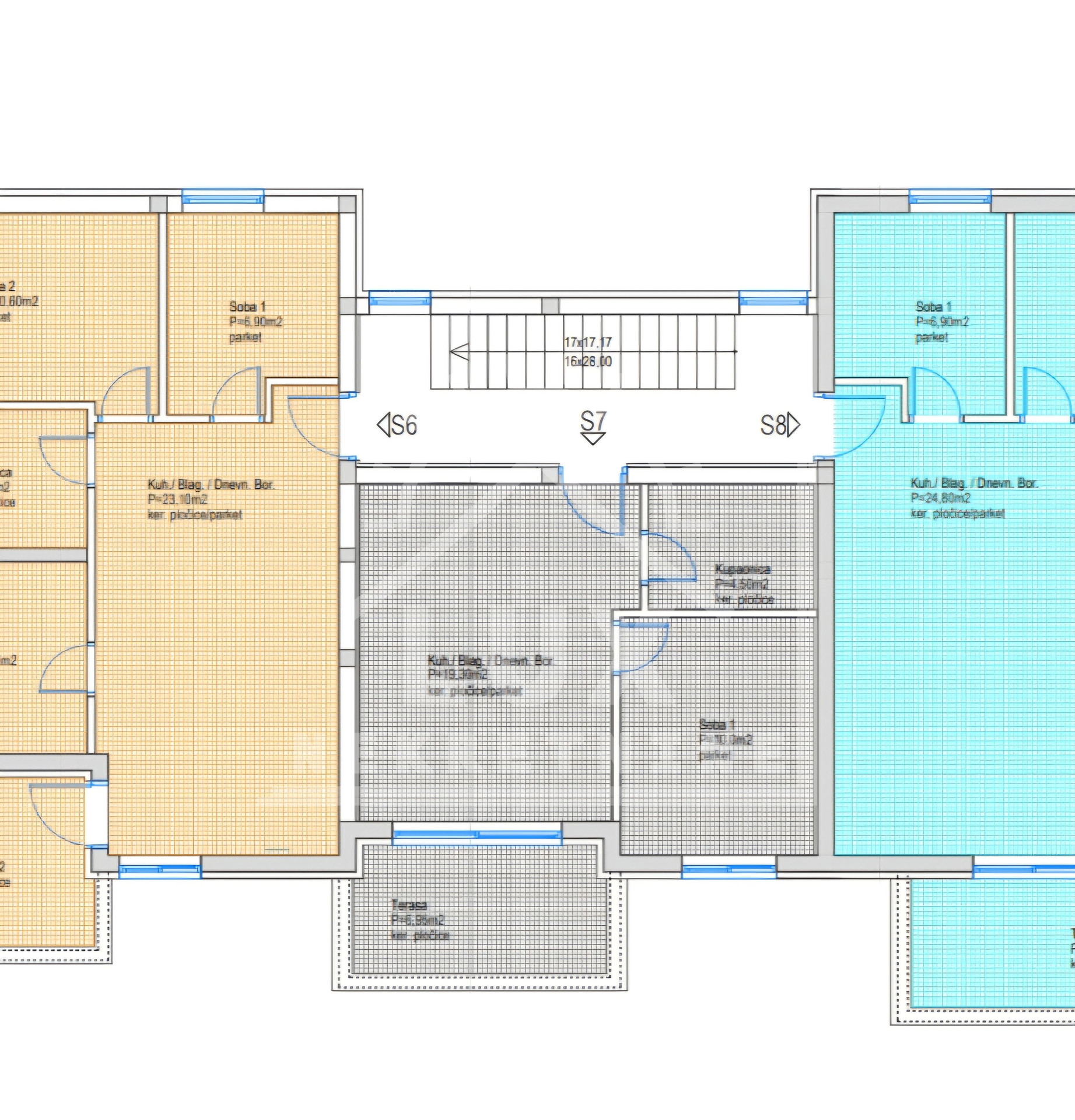
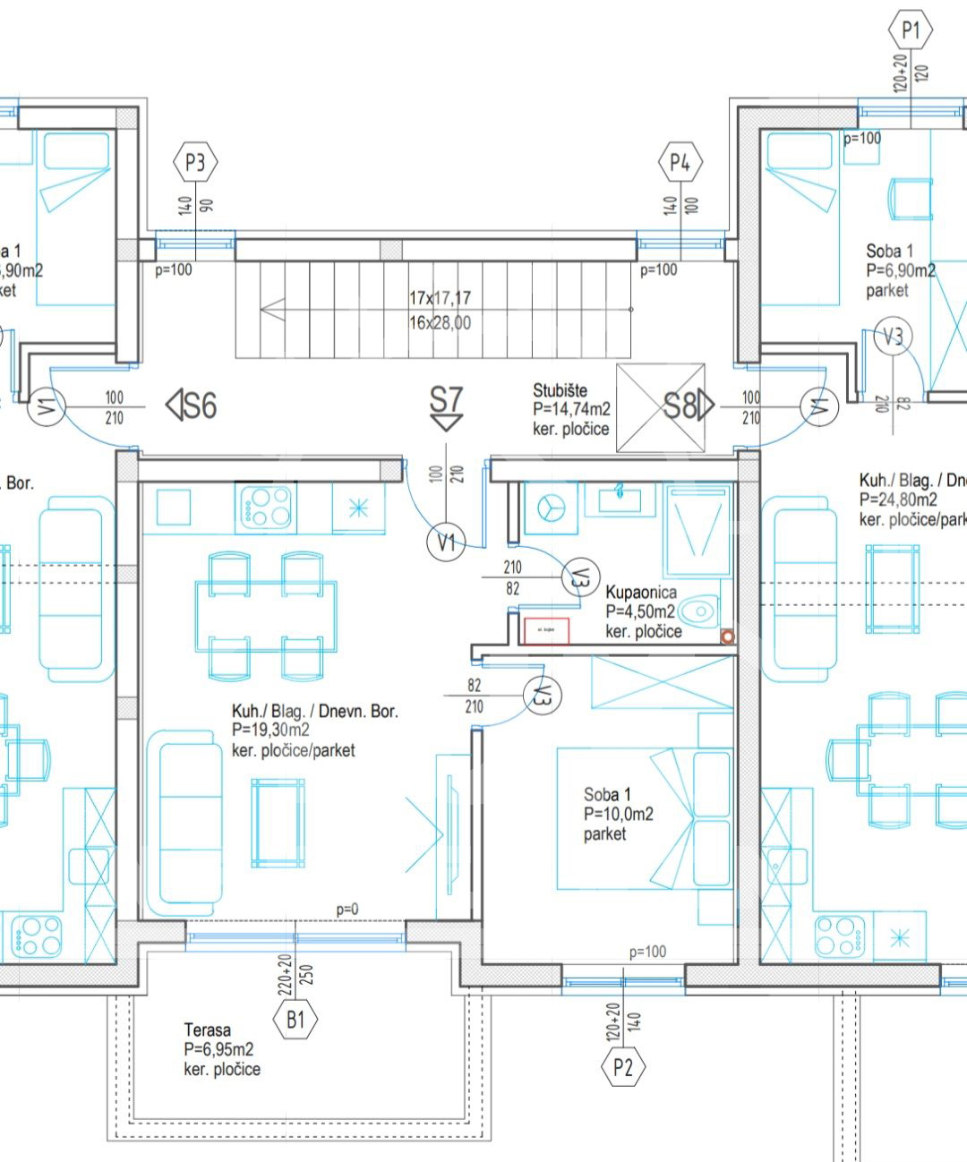
STAN S7 na 2. katu, jednosoban, sadrži: : dnevnog boravka s blagovaonicom i kuhinjom (pov. 19.30 m2), spavaću sobu (pov. 10 m2), kupaonicu (pov. 4.50 m2) i terasu (pov. 6.90 m2).
Orijentacija stana je JUG – JUGOISTOK.
Stanu pripadaju i dva parkirna mjesta PM17 i PM18 na okućnici zgrade (pov. 13.75 m2 i 13.75 m2).
Ukupna korisna pov. stana sa svim pripatcima iznosi 42.75 m2.



jednosoban stan, blizina prirode, zeleni park, novogradnja

Osnovne informacije

  • Šifra objektairo-410
  • Prodajna cijena185 000 €
  • LokacijaZadar, Plovanija (23000)
  • Kvadratura42,75 m2
  • Tip stana1S+DB
  • Energetski razredA+
  • Broj soba2
  • Broj spavaćih soba1
  • Broj kupaonica1
  • Kat2
  • Broj etažaJednoetažni
  • Ukupno katova2
  • Vrsta zgradeStambena
  • Godina izgradnje2026
  • Br. parkirnih mjesta2

Razna svojstva

  • Balkon
  • PVC stolarija
  • Pogled na more

Grijanje

  • Podno grijanje
  • Klima

Instalacije

  • Struja
  • Voda
  • Kanalizacija

Stanje zgrade

  • Novogradnja

Orijentacija

  • Jug
  • Jug
  • Istok

U blizini

  • Javni prijevoz
  • Trgovina
  • Frizerski salon
  • Veterinar
  • Bolnica
  • Škola
  • Zubarska ord.
  • Bazen

Dokumentacija

  • Građevinska dozvola

Prikaz nekretnine na karti

Kontaktiraj agenta

Suzana Jakovac
Ova stranica ostavlja "kolačiće" na Vašem kompjutoru za potrebe navigacije i anonimizirane statistike pristupa. Korištenjem ove stranice prihvaćate i potvrđujete ove "kolačiće".