Apartment 1 room + livingroom for sale, Zadar, 207 500 €

Apartment, 47 m2, For Sale, Zadar - Plovanija

Residential building with 8 residential units, Zadar (Plovanija) NEW CONSTRUCTION.
It consists of a ground floor and two floors. There are two residential units on the ground floor, and three on the 1st and 2nd floors.
BUILDING EQUIPMENT: security and fire doors to the apartments, external PVC joinery with mosquito nets, 10 cm thick facade (planned energy class A+), air conditioners in all rooms, underfloor heating in the bathrooms, flooring - ceramics and oak parquet.
The location is extremely quiet, close to nature and surrounded by newer buildings that create a smaller urban settlement of recent date. In front of the building, a large green park is planned to be built on an area of ​​5000 m2 (there are several photos of the same in the ad).
The building will be connected to the city water supply and sewage system.

Construction is planned to be completed by the end of summer 2026, and the documentation for the building and apartments by the end of 2026.

The apartments will be registered to the company so that the buyer DOES NOT PAY REAL ESTATE TRANSFER TAX!

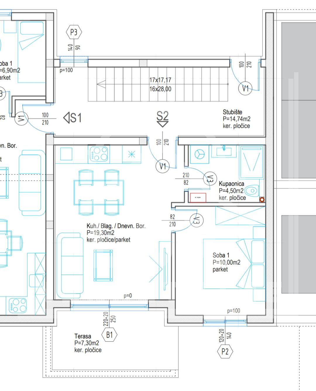
APARTMENT S2 on the ground floor with a garden, one bedroom, area 47.95 m2, contains: living room with dining room and kitchen (area 19.30 m2), bedroom (area 10 m2), bathroom (area 4.50 m2) and terrace (area 7.30 m2).
The orientation of the apartment is SOUTH - SOUTHEAST.
The apartment also has a garden (area 50 m2) and two parking spaces PM13 and PM14 in the building's yard (area 13.75 m2 and 13.75 m2).
The total usable area of ​​the apartment with all accessories is 47.95 m2.

Basic information

  • Custom IDiro-408
  • Price207 500 €
  • LocationZadar, Plovanija (23000)
  • Area47,95 m2
  • Apartment type1 room + livingroom
  • Energy ClassA+
  • Room Count2
  • Bedroom Count1
  • Bathroom Count1
  • Floor DescriptiveGround
  • Floor LevelsStorey
  • Building Floors2
  • Building ClassResidential
  • Year Built2026
  • Parking Spaces2

Various Features

  • Balcony
  • PVC joinery

Heating

  • Air Conditioning
  • Floor Heating

Utilities

  • Electricity
  • Water
  • Sewer

Building Condition

  • New

Building Orientation

  • South
  • South
  • East

In Vicinity Of

  • Public Transport
  • Grocery Store
  • Hair Salon
  • Veterinarian
  • Hospital
  • School
  • Dentist
  • Library
  • Pool

Permits and documentation

  • Building Permit

Property location

Contact this agent

Suzana Jakovac
This website is leaving "cookies" on your computer for the purpose of content navigation and anonymized usage statistics collection. By using this website you confirm that you agree with this.